CASA SARCA
Residential

Site: Milan
Project: In progress
Team: Guillermo Sánchez Cárdenas, Kevin Santus, Arianna Scaioli

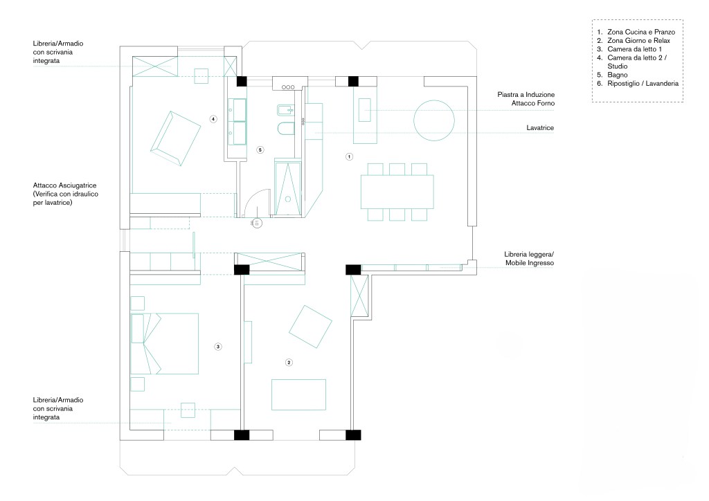
The Casa Sarca renovation reimagines a 1960s apartment as an open, continuous space, using timber not as ornament but as a device to shape thresholds and define inhabited walls. At its core is an effort to fluidly connect interior zones while preserving and activating the memories embedded in the existing dwelling. The design was developed through an ongoing dialogue with the clients, a young couple living between Lausanne and Milan, whose personal objects and spatial recollections became key reference points in rethinking the space.
Central to the project is the idea of continuity: rather than compartmentalizing functions within boxed rooms, the design treats the apartment as an enduring field of activity, where living, working, resting, and socializing overlap and seep into one another. Timber plays a formative role in this strategy. Wooden surfaces and frames articulate edges, transitions, and thresholds without erecting visual barriers, weaving functional elements — storage, seating, partitions — into a coherent architectural tapestry. Walls become objects for use and memory; niches, shelves, and surfaces become inhabited rather than merely enclosing.
The project draws conceptual inspiration from Antonello da Messina’s Saint Jerome in His Study, evoking a sense of contemplative interiority and layered presence. Like the painting, the renovated apartment becomes a place where objects and occupied space are in constant, reciprocal dialogue: lived things frame lived experiences. Spatial sequences are calibrated to allow glimpses across functions, enabling a perceptual continuity that resists strict segmentation.
This continuity responds to the couple’s way of living, accommodating shifts in use without rigid hierarchies. Moments of pause, circulation, and gathering are woven through the material logic of wood and the inhabitable walls that carry personal and collective memories. Casa Sarca becomes less an assemblage of rooms and more a continuous architectural field.